главная страница / библиотека / обновления библиотеки

Из истории мирового искусства и культуры. Сборник статей к 75-летию Юрия Александровича Русакова (1926-1995). СПб: «Сад искусств». 2003. Н.Н. Никулин

К истории экстремизма в России
(взрыв в Зимнем дворце 5 февраля 1880 г.).

// Из истории мирового искусства и культуры. СПб: «Сад искусств». 2003. С. 482-488, 594.

 

История этого взрыва хорошо известна. Крестьянин Вятской губернии Степан Халтурин (1856-1882) приехал в 1875 г. в Санкт-Петербург и, познакомившись там с революционно настроенными рабочими, включился в их деятельность, а затем стал одним из главарей революционного движения. «Северный союз русских рабочих» был создан им совместно с В.П. Обнорским. Позже он примкнул к народовольцам. Идеи индивидуального террора давно волновали Халтурина, он вынашивал мысль о покушении на царя. Хорошо владевший столярным ремеслом, Халтурин сумел поступить под именем Степана Батышкова в Зимний дворец, где занимался столярными работами. С помощью сообщников он раздобыл большое количество взрывчатки (15 пудов динамита) и беспрепятственно пронёс её в Зимний дворец, так как охрана не обыскивала входящих. Взрывчатка была помещена в подвальной комнате, где жили столяры, и взорвана в воскресенье 5 февраля 1880 г.

 

Халтурин рассчитал время взрыва в соответствии с прибытием принца Гессенского, которого царь ждал к обеду в помещениях, расположенных на втором этаже, над комнатой столяров. Однако принц задержался, и во время взрыва ни царя, ни его приближённых на месте не было. Халтурин, приведя в действие своё адское устройство, ушёл из дворца и вскоре, никем

(482/483)

 

Илл. 1. Чертежи части Императорского Зимнего дворца с показанием разрушений, произведённых взрывом 5 февраля 1880 г.

(Открыть Илл. 1 в новом окне)

 

(483/484)

не обнаруженный, несмотря на старания полиции, уехал в Москву, а затем в Одессу. С 1881 г. он стал членом исполкома «Народной воли» и продолжал террористическую деятельность. В 1882 г. им был убит военный прокурор генерал В.С. Стрельников, после чего полиции удалось поймать Халтурина. Он был осуждён и повешен.

 

В Отделении рисунков Эрмитажа хранится несколько чертежей Зимнего дворца, связанных со взрывом. Один из них особенно интересен.

 

(484/485)

Илл. 2. План первого этажа Зимнего дворца.

(Открыть Илл. 2 в новом окне)

Илл. 3. Чертёж первого этажа. Чёрной краской и волнистой линией обозначены повреждения, произведённые взрывом (деталь).

(Открыть Илл. 3 в новом окне)

 

(485/486)

 

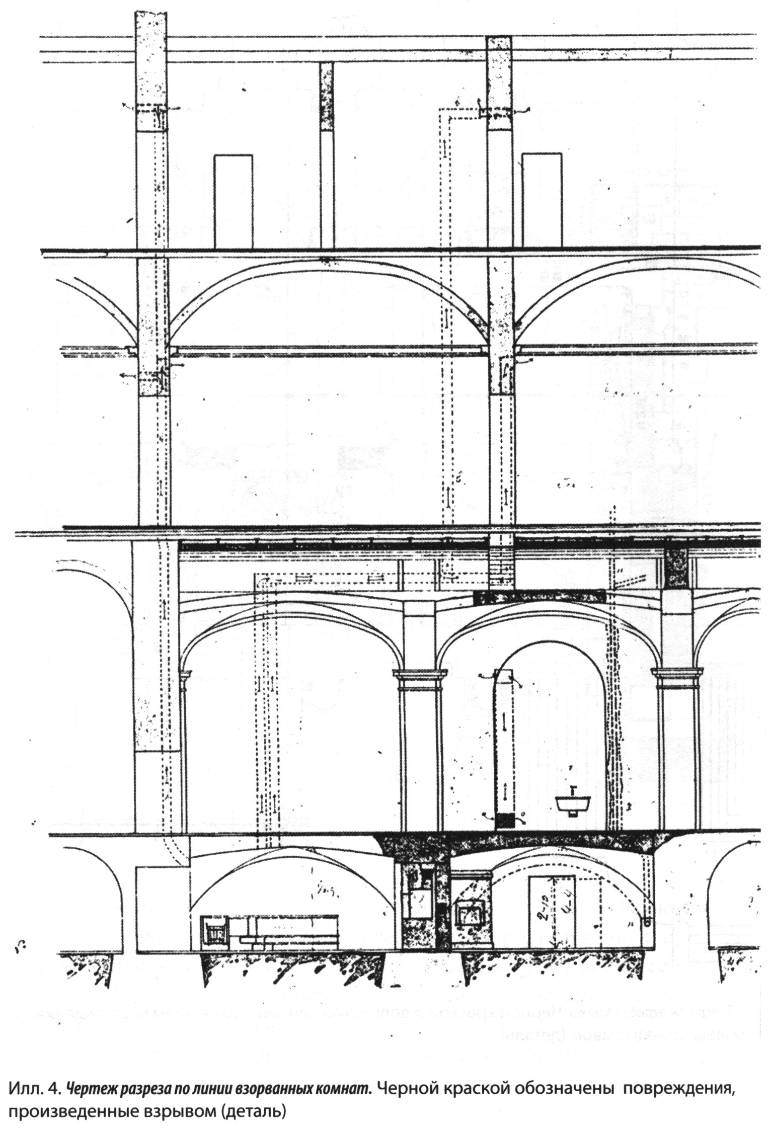
Илл. 4. Чертёж разреза по линии взорванных комнат. Черной краской обозначены повреждения, произведённые взрывом (деталь).

(Открыть Илл. 4 в новом окне)

 

(486/487)

Он фиксирует разрушения, причинённые дворцу, и место, где происходили трагические события 1 (илл. 1). Столяры жили в главном дворе Зимнего дворца. Нужно было войти в ворота, ведущие с Дворцовой площади, мимо охраны, пересечь двор. Слева, в глубине, видна низкая арка входа в подвал дворца, сохранившаяся до наших дней (на чертеже вход обозначен стрелкой) (илл. 2). Комната столяров находилась рядом со входом, с окнами, обращёнными во двор. Сейчас там помещается мастерская по обработке камня.

 

Взрыв разрушил эту комнату, но основная сила его была направлена вверх, на комнаты первого и второго этажей. На первом находилось караульное помещение. (В наше время здесь расположена выставка предметов из кургана Пазырык. [Зал №26, Пятый Пазырыкский курган.]) На чертеже этого этажа хорошо видно, как пострадал свод подвала и как был пробит свод караульного помещения и повреждён пол комнат второго этажа, находящихся над ним, где предполагался царский обед (илл. 3, 4). (В этих комнатах находятся сейчас памятники петровского времени Отдела русской культуры.) В правительственном сообщении это было описано так: «значительная часть сводов и печь... разрушены, все двери вырваны, деревянная обшивка труб оторвана и тамбур у входа уничтожен, в первом этаже, где помещались нижние чины караула, в нижнем своде потолка (имевшем ещё вторые, лёгкие своды) две пробоины и нижняя часть пола провалилась; во втором этаже, в столовой комнате приподнят паркет на месте, соответствующем упомянутой пробоине и треснула стена. Значительное число стёкол в здании дворца оказалось разбитым». 2

 

Больше всего пострадало караульное помещение, где погибло десять [11] солдат и было ранено пятьдесят четыре. Сообщники предупреждали Халтурина, что пострадают невинные люди, однако, по словам современников, он ответил: «Ну и пусть, будет больше шума!» Высказывание характерное. Позднее большевики отвергли индивидуальный террор, заменив его массовым. И действовали по той же схеме: чем больше погибнет невинных, тем террор будет результативнее.

 

После Октябрьской революции Халтурин стал чуть ли не национальным героем. О нём написано множество книг, 3 ему был создан памятник; улица, примыкающая к Зимнему дворцу, получила его имя. В наше время, когда происходит переоценка исторических событий, на уроках в школе уже не рассказывают о Халтурине. Улица его имени вновь стала Миллионной, а взрыв в Зимнем дворце из героического деяния превратился в эпизод истории развития экстремизма в России.

(487/488)

 

Примечания.   ^

 

1 «Чертёж части Зимнего дворца с показанием разрушений, произведённых взрывом 5 февраля 1880 года». ГЭ ор. 17169, калька, тушь, 36×46 см. Два других чертежа выполнены позже, после ремонта дворца. Первый: План первого этажа. ГЭ op 17171, бумага, тушь, 45,5×61,5 см, состоит из двух частей, подписан: «Инженер-полковник (подпись неразборчива), 18 июня 1880. Работал с натуры кондуктор 1-го класса С. Лебедев». Второй: Разрез по линии взорванных комнат. ГЭ ор 17172, бумага, тушь, 45,4×60 см. Подписан: «Инженер-полковник (подпись неразборчива), 18 июля 1880 г. Работал с натуры кондуктор 1 класса С. Лебедев».

2 РГИА. Ф. 1405. Оп. 77. Ед. хр. 7936. Л. 31.

3 Полевой Ю.З. Степан Халтурин. М., 1957; Соболев В.А. Степан Халтурин. Киров, 1973; Прокофьев В.А. Степан Халтурин. М., 1958; Нагиев Г. Казнён неопознанным... Повесть о Степане Халтурине. М., 1970; Канн П.Я. Взрыв в Зимнем дворце // Вопросы истории. 1980. №2; большое исследование о взрыве в Зимнем дворце готовит Г.В. Вилинбахов.

 


 

(/594)

 

Nickolai N.Nikulin.

 

NEW MATERIALS TO THE HISTORY OF EXTREMISM IN RUSSIA.
THE EXPLOSION IN THE WINTER PALACE ON FEBRUARY 5, 1880.   ^

 

The draughts that were unknown before, now held by the Hermitage Section of West European drawings, are published in the article. They were made right after the explosion in the Winter palace, which rumbled on February 5, 1880, fixing the damaged parts of the palace and the proper place of the tragic event.

 

 

 

 

 

 

 

 

 

 

 

 

 

 

 

 

 

 

 

 

 

 

 

 

 

 

 

 

 

 

 

 

 

 

 

 

 

наверх

главная страница / библиотека / обновления библиотеки